北京協和醫學院東單校區的吳憲大樓、基金會大樓和18號樓建筑原有避雷系統經專業機構檢測評審后不能滿足現行相關規范要求,現依據現行相關規范對上述建筑防雷接地體統進行修繕,誠摯邀請具有制作安裝能力及相關資質的公司參選。
一、目前防雷接地系統存在的問題:
1、設備配電箱內缺少浪涌保護器;
2、屋面設備缺少防雷接地保護性跨接地線;
3、屋面接閃帶缺少防雷引下線;
4、接閃帶上有未知線纜纏繞;
二、防雷接地的技術指標:
1、需滿足《GB-50303-2015》電氣質量驗收規范;《GB-50057-94》建筑物防雷設計規范;《GB-50343》建筑物電子安全系統防雷技術規范;
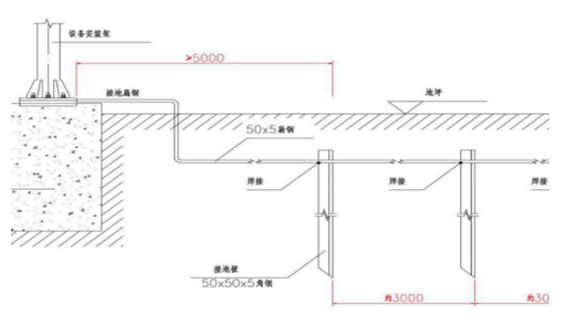
2、接地裝置參考圖集做法

3、 接地裝置與引下線連接參考圖集

4、現場照片:

三、本項目的資格要求及相應資料:
1.具備有效的營業執照和施工企業安全生產許可證,具備有效的建設行政主管部門頒發的建筑工程施工總承包三級及以上資質,并在中央國家機關(http://www.zycg.gov.cn)2021-2022年工程施工項目定點企業名錄中;
2. 項目現場負責人必須持有機電專業二級建造師或以上等級證書;
3. 本項目屬于整體專門面向中小企業采購的項目,供應商須為符合《政府采購促進中小企業發展管理辦法》(財庫[2020]46號)規定的中小企業(其中,小微企業包括視同為小型、微型企業的監獄企業、殘疾人福利性單位)。本項目所屬行業為建筑業。
4. 法定代表人為同一個人的兩個及兩個以上法人,母公司及其全資子公司、控股公司,不得同時參加本比選項目的比選。
5. 本次比選 不接受 (接受或不接受)聯合體參選。
四、工程清單(詳見附件)
五、采購預算(該條作為否決性條件)
控制價95221.93元。
注:以上價格為包干費用(包括原有不合格避雷系統的拆除清理,新避雷系統的制作、材料運輸、安裝、成品保護、人工費用、保險費用、稅金等)。
六、工期及質保
工期要求:合同簽訂后30日歷天完成拆除、供貨及安裝;
質量要求:符和防雷施工及質量驗收相關規范,設備安裝牢固可靠,自驗收之日起質保期2年,在使用過程中提供必要的技術支持和配合工作。
七、比選材料組成
營業執照、法人身份證復印件、報價清單、實施方案(含工期)、產品質量安全承諾(格式自擬),參選人認為應補充的其他材料。
以上材料均需加蓋單位公章,遞交時需要密封良好,密封處加蓋公章,遞交份數:1份。
注:本項目名稱為“北京協和醫學院東單校區防雷接地修繕工程”
八、比選材料遞交
遞交時間:2024年9月9日下午14:00
遞交地點:新天地大廈218-2
聯系人:王老師,聯系電話:010-65105957
九、評分標準
內 容 |
具 體 標 準 |
分值(分) |
參選報價 |
滿足比選文件要求且最終報價最低的報價為評審基準價,其價格分為滿分。其他參選人的價格分按照下列公式計算:報價得分=(評審基準價∕最終報價)×價格權值×100%。 |
50 |
實施方案 |
對技術參數的響應程度、制作安裝細節等進行綜合評審:實施方案一般,針對性不夠強,得5分;實施方案基本全面,有一定針對性,得10;實施方案較全面,論述較清晰,措施較科學,針對性較強,得20分;實施方案全面細致,論述完整清晰,措施科學,針對性強,得30分; |
30 |
工期保證 |
完全滿足工期要求得10分;每延后一天扣5分,扣完為止。 |
10 |
質量保證 |
質保期不滿2年得0分;質保期滿足2年要求得6分;質保期超過2年的,每增加一年加2分;本項累計最高10分。 |
10 |
總 分 |
100 |
|
北京協和醫學院
行政后勤處
2024年9月4日